Bartolomeus Diazstraat 15 in Hulst -
€495.000,- k.k.
Bezichtig deze woning virtueel
Omschrijving
Vrijstaand wonen met ruimte, licht en een fijne tuin
Deze vrijstaande woning biedt volop comfort en ruimte voor het hele gezin. Met vier slaapkamers, een lichte woonkamer, een praktische keuken, bijkeuken en inpandige garage voelt dit huis meteen als thuis. Het staat op een mooi perceel met een nette tuin die zowel zon als schaduw biedt, zodat je op ieder moment van de dag van buiten kunt genieten.
De woning ligt in een rustige, groene straat waar je in alle rust kunt wonen, zonder in te leveren op bereikbaarheid. Winkels, scholen en sportfaciliteiten liggen dichtbij, terwijl gezellige terrassen, restaurants en het stadscentrum binnen enkele minuten bereikbaar zijn. Ook uitvalswegen naar steden als Antwerpen en Gent zijn eenvoudig te bereiken, waardoor wonen hier perfect samenkomt met gemak en bereikbaarheid.
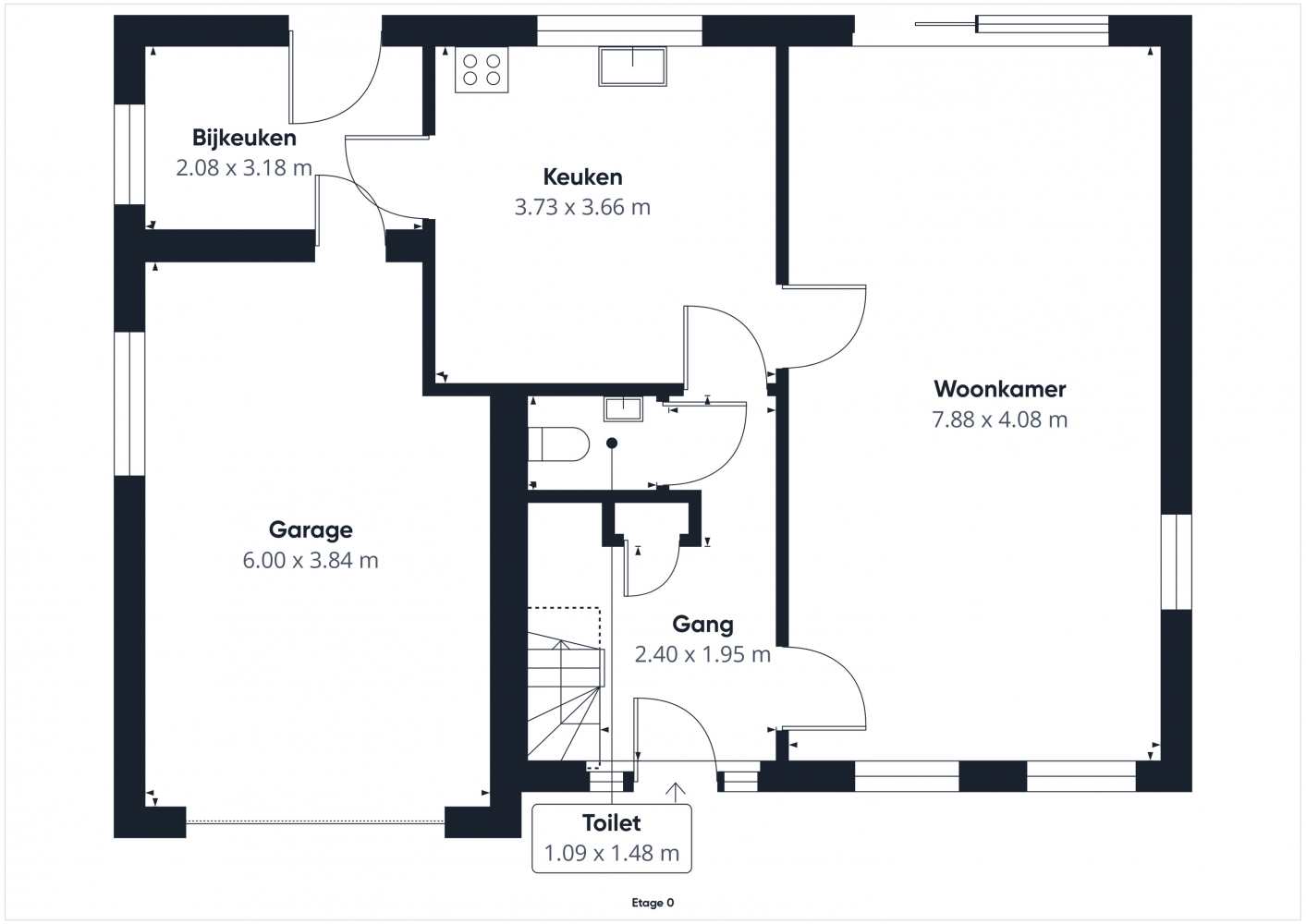
Indeling:
Begane grond:
Bij binnenkomst stap je in de hal, waar de trap naar de verdieping, de meterkast en het toilet met fonteintje zijn gesitueerd. Vanuit de hal loop je de lichte doorzonwoonkamer in, een ruimte vol licht waar je heerlijk kunt ontspannen of samenkomen met het gezin. De grote schuifpui geeft direct toegang tot de tuin. De keuken ligt aan de achterzijde en is voorzien van inbouwapparatuur. Vanuit de keuken bereik je de bijkeuken, met witgoedaansluitingen en cv-ketel, die tevens toegang biedt tot de inpandige garage en de tuin. De garage en ruime oprit zorgen voor voldoende parkeergelegenheid.
De tuin is een heerlijke buitenruimte om te ontspannen of te spelen. Het terras met zonnescherm grenst direct aan de woning en het gazon biedt volop ruimte voor kinderen om te spelen. Achterin staat een houten berging voor extra opslag. Dankzij de ligging op het oosten kun je ’s ochtends en in de vroege middag genieten van zon, terwijl er ook beschutte plekjes zijn om rustig in de schaduw te zitten.
Eerste verdieping:
Op de eerste verdieping bevinden zich vier goed bemeten slaapkamers, allemaal praktisch in te delen. De badkamer is compleet uitgerust met een ligbad, douche, dubbele wastafel en toilet, waardoor het comfort van de begane grond hier naadloos wordt voortgezet.
Tweede verdieping:
De tweede verdieping is bereikbaar via een vlizotrap en biedt een bergzolder, ideaal om spullen die je niet dagelijks gebruikt netjes op te bergen.
Bijzonderheden:
- Energielabel A
- Voorzien van dak-, muur- en vloerisolatie
- Warm water en verwarming door middel van C.V.-combiketel uit 2016
- Voorzien van kunststof kozijnen met dubbelglas en rolluiken
Kortom, een ruime, lichte en complete woning met een fijne tuin en veel praktische voorzieningen. Een plek waar je direct kunt wonen en genieten van comfort, rust en ruimte. Kom gerust langs en ervaar zelf hoe prettig het hier wonen is.
Kenmerken
- Adres
- Bartolomeus Diazstraat 15
- Postcode
- 4562 AN
- Type
- Vrijstaande woning
- Bouwjaar
- 2001
- Aantal kamers
- 5
- Aantal slaapkamers
- 4
- Perceel oppervlakte
- 545m²
- Oppervlakte woonruimte
- 130m²
- Inhoud
- 547m³
- Tuin
- Ja
- Garage aanwezig
- Ja
- Energielabel
- A
- Verwarming
- cv ketel
- Vraagprijs
- € 495.000,- k.k.


