Godsplein 4 in Hulst -
€410.000,- k.k.
Bezichtig deze woning virtueel
Omschrijving
Wonen in het hart van Hulst – met alle charme van de binnenstad én het comfort van modern wonen. Deze ruime benedenwoning aan het Godsplein 4 combineert het beste van twee werelden: een eigen voordeur aan de straatzijde en een heerlijk terras op het binnenterrein van het complex.
Het appartement maakt deel uit van een kleinschalig, in 2009 gebouwd complex en biedt een royaal woonoppervlak van 106 m². Dankzij de ligging op de begane grond profiteer je van extra gemak én privacy, met een eigen parkeerplaats en een bijzonder ruime berging (17 m²) in de parkeerkelder.
Indeling
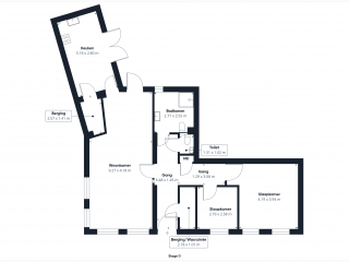
De entree aan de straatzijde leidt naar een ruime hal met meterkast, toilet en een berging/wasruimte. Vanuit hier stap je de lichte woonkamer binnen, voorzien van een nette laminaatvloer en een tuindeur naar het zonnige terras van circa 20 m² – een fijne, beschutte plek midden in de stad. De open keuken sluit aan op de woonkamer en is uitgevoerd in een moderne witte hoekopstelling met inductiekookplaat, afzuigkap, vaatwasser, koelkast en combimagnetron. Ook vanuit de keuken geven dubbele deuren toegang tot het terras.
Naast de keuken bevindt zich een extra berging/bijkeuken – praktisch voor voorraad of apparatuur. De volledig betegelde badkamer is uitgerust met een douche, wastafel en tweede toilet. Aan de rechterzijde van de hal liggen de twee slaapkamers (ca. 7 m² en 17 m²), beide met laminaatvloer.
Kenmerken:
- Bouwjaar 2009
- Woonoppervlak circa 106 m²
- Energielabel B
- Cv-ketel uit 2021
- Balansventilatie
- Volledig geïsoleerd
- Kunststof kozijnen met HR++ glas
- Eigen parkeerplaats in parkeerkelder
- Ruime berging (4,95 x 3,35 m)
- Eigen terras van circa 20 m²
Ligging
Het Godsplein ligt midden in het historische centrum van Hulst, op loopafstand van gezellige terrassen, winkels en de sfeervolle Bierkaai. Ook de stadsvesten met hun wandelpaden liggen om de hoek – ideaal voor een dagelijkse wandeling of een moment van rust in het groen.
Een uitstekend onderhouden en instapklare benedenwoning met een unieke combinatie van ruimte, comfort en centrumlocatie – een zeldzame kans in hartje Hulst.
Kenmerken
- Adres
- Godsplein 4
- Postcode
- 4561 BD
- Type
- Appartement
- Bouwjaar
- 2009
- Aantal kamers
- 3
- Aantal slaapkamers
- 2
- Oppervlakte woonruimte
- 106m²
- Inhoud
- 450m³
- Tuin
- Nee
- Garage aanwezig
- Ja
- Energielabel
- B
- Verwarming
- cv ketel
- Vraagprijs
- € 410.000,- k.k.


