Beatrixstraat 41 in Terneuzen -
€185.000,- k.k.
Bezichtig deze woning virtueel
Omschrijving
Knusse tussenwoning met zonnige tuin nabij het centrum
Zoek je een fijne starterswoning waar je jouw eigen droomplek van kunt maken, en wil je bovendien graag wonen op een rustige locatie vlak bij alle voorzieningen? Dan is een bezichtiging van deze woning zeker de moeite waard. Deze tussenwoning heeft een praktische indeling, een zonnige tuin met vrije achterom en biedt volop mogelijkheden om er met wat liefde en aandacht iets heel moois van te maken.
De woning ligt in de gezellige Oranjebuurt van Terneuzen, aan een rustige straat vlak bij het centrum. Supermarkten, winkels en scholen zijn op loopafstand bereikbaar, en binnen enkele minuten fiets je naar de Westerscheldedijk of de winkelstraat. Met de auto ben je bovendien snel onderweg richting Gent, Brugge, Antwerpen, Middelburg of Goes – of naar het Noordzeestrand voor een dagje uitwaaien.
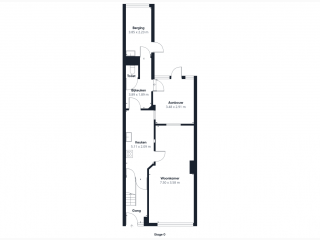
Indeling:
Begane grond:
Bij binnenkomst kom je in de hal met trapopgang naar de verdieping en toegang tot de keuken. De halfopen keuken is voorzien van inbouwapparatuur en staat in verbinding met de lichte woonkamer, waar de zithoek aan de voorzijde en de eethoek aan de achterzijde zorgen voor een prettige indeling. In het midden van de kamer zorgt een sfeervolle schouw voor een warme uitstraling. Achter de keuken bevindt zich de bijkeuken met witgoedaansluiting, cv-opstelling en toegang tot het toilet, de aanbouw en de berging. De berging is inpandig bereikbaar en voorzien van elektra en water – praktisch voor fietsen of extra opslag.
De onderhoudsvriendelijke achtertuin ligt gunstig op de zon en biedt een heerlijke plek om buiten te zitten. Dankzij de vrije achterom is de tuin ook makkelijk bereikbaar met de fiets of het tuinafval, en door de bestrating is er weinig onderhoud nodig.
Eerste verdieping:
Op de eerste verdieping vind je twee slaapkamers, waarvan de ruime hoofdslaapkamer aan de voorzijde is voorzien van twee vaste kasten. De tweede kamer ligt aan de achterzijde en is ideaal als kinderkamer, werkruimte of kleedkamer. De badkamer is netjes en compleet ingericht met een douche, wastafelmeubel en toilet.
Tweede verdieping:
De tweede verdieping bestaat uit een bergzolder die bereikbaar is via een vlizotrap. Hier is extra bergruimte voor koffers, seizoensspullen of andere zaken die je niet dagelijks nodig hebt.
Bijzonderheden:
- Energielabel D
- Warm water en verwarming door middel van C.V.-combiketel
- Voorzien van deels kunststof kozijnen met dubbelglas
Ben je op zoek naar een betaalbare woning met potentie, dicht bij het centrum van Terneuzen? Kom dan zeker eens kijken – dit huis heeft alles in zich om met wat aandacht een heerlijk thuis te worden.
Kenmerken
- Adres
- Beatrixstraat 41
- Postcode
- 4532 AV
- Type
- Tussenwoning
- Bouwjaar
- 1938
- Aantal kamers
- 3
- Aantal slaapkamers
- 2
- Perceel oppervlakte
- 135m²
- Oppervlakte woonruimte
- 90m²
- Inhoud
- 310m³
- Tuin
- Ja
- Garage aanwezig
- Nee
- Energielabel
- D
- Verwarming
- cv ketel
- Vraagprijs
- € 185.000,- k.k.


