Wilhelminastraat 1 in Hoek -
€275.000,- k.k.
Bezichtig deze woning virtueel
Omschrijving
Gezellig en instapklaar wonen met ruimte, sfeer en een diepe tuin
Aan de rand van het dorp staat deze instapklare hoekwoning, een plek waar sfeer en comfort hand in hand gaan. Met vier slaapkamers, een lichte woonkamer, een moderne keuken en een verzorgde afwerking is dit een huis waar je zó je meubels neerzet. Het geheel voelt warm en gezellig, maar tegelijk netjes en modern. Ideaal voor een gezin dat op zoek is naar een fijne woonplek met alles binnen handbereik.
De ligging maakt het plaatje compleet. De woning staat in een rustige, doodlopende straat waar alleen bestemmingsverkeer komt. Daardoor kunnen kinderen hier veilig spelen en leer je de buren vanzelf kennen. Binnen een paar minuten lopen sta je bij de supermarkt of bakker, breng je de kinderen naar school of fiets je naar de sportvelden. Ook het dorpshuis, de cafetaria en diverse sportvoorzieningen zorgen voor die fijne combinatie van rust en levendigheid die wonen hier zo aantrekkelijk maakt.
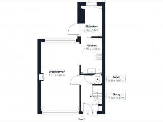
Indeling:
Begane grond:
Bij binnenkomst kom je in de hal met de trapopgang, meterkast en het toilet. Vanuit hier stap je de woonkamer in: een lichte doorzonkamer waar de gezellige haard meteen de blik vangt. Hier is genoeg ruimte voor een fijne zithoek en een grote eettafel waar je samen met familie en vrienden lange avonden kunt doorbrengen. De open keuken sluit hier perfect op aan en is uitgevoerd met moderne inbouwapparatuur, waardoor koken een plezier wordt. Achter de keuken ligt de praktische bijkeuken met witgoedaansluitingen en een deur naar de achtertuin.
De tuin is onderhoudsarm aangelegd en ligt op het noordoosten. Dankzij de royale overkapping kun je hier van vroeg in het voorjaar tot laat in het najaar heerlijk buiten zitten, ook als het weer wat minder is. De extra ruime garage biedt mogelijkheden te over: van stalling en opslag tot een fijne klus- of hobbyruimte. De vrije achterom maakt het plaatje compleet.
Eerste verdieping:
Op de eerste verdieping bevinden zich drie slaapkamers, stuk voor stuk netjes afgewerkt en klaar voor gebruik. De badkamer is voorzien van een douche en wastafel en er is een apart toilet aanwezig, een fijne extra in het dagelijks gebruik.
Tweede verdieping:
De tweede verdieping verrast met een vierde slaapkamer, compleet met extra bergruimte achter de schotten. Dit kan een perfecte tienerkamer zijn, maar ook een rustige thuiswerkplek of hobbykamer. De ruimte voelt licht en praktisch in gebruik.
Bijzonderheden:
- Energielabel C
- Voorzien van muurisolatie
- Warm water en verwarming door middel van C.V.-combiketel
- Voorzien van hardhouten kozijnen met dubbelglas en rolluiken
Deze woning combineert instapklaar wonen met ruimte, sfeer en een rustige ligging. Hier hoef je niet meer te klussen: je kunt er direct intrekken en genieten van een huis dat alles in zich heeft om jouw nieuwe thuis te worden. Plan vandaag nog een bezichtiging en ontdek zelf hoe fijn het hier wonen is.
Kenmerken
- Adres
- Wilhelminastraat 1
- Postcode
- 4542 AR
- Type
- Hoekwoning
- Bouwjaar
- 1964
- Aantal kamers
- 5
- Aantal slaapkamers
- 4
- Perceel oppervlakte
- 331m²
- Oppervlakte woonruimte
- 91m²
- Inhoud
- 333m³
- Tuin
- Ja
- Garage aanwezig
- Ja
- Energielabel
- C
- Verwarming
- cv ketel
- Vraagprijs
- € 275.000,- k.k.


