Wilhelminastraat 7 in Hoek -
€200.000,- k.k.
Omschrijving
Leuke hoekwoning met potentie – creëer hier jouw droomplek!
Deze hoekwoning is ideaal voor starters of jonge gezinnen die op zoek zijn naar een fijn thuis met mogelijkheden. Met wat liefde en aandacht kun je deze woning helemaal naar eigen smaak moderniseren en omtoveren tot een plek waar je jarenlang met plezier zult wonen! De woning heeft een aanbouw, twee slaapkamers en een ruime zolderkamer die eenvoudig kan worden omgevormd tot een volwaardige derde slaapkamer. Bovendien is er een garage en een ruime tuin aanwezig: een heerlijke wooncombinatie!
De ligging maakt het plaatje compleet. De woning staat in een rustige, doodlopende straat waar alleen bestemmingsverkeer komt. Daardoor kunnen kinderen hier veilig spelen en leer je de buren vanzelf kennen. Binnen een paar minuten lopen sta je bij de supermarkt of bakker, breng je de kinderen naar school of fiets je naar de sportvelden. Ook het dorpshuis, de cafetaria en diverse sportvoorzieningen zorgen voor die fijne combinatie van rust en levendigheid die wonen hier zo aantrekkelijk maakt.
Indeling:
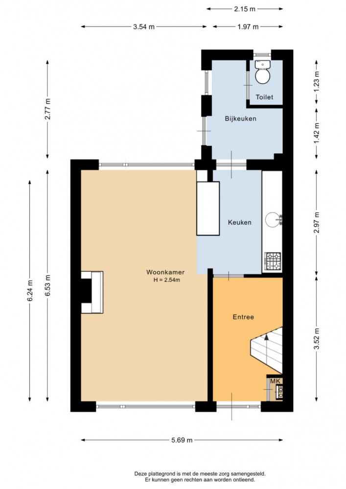
Je komt de woning binnen in de hal met meterkast en een open trap naar de eerste verdieping. Vanuit de hal loop je de lichte doorzonwoonkamer binnen, voorzien van een sfeervolle gashaard. De woonkamer staat in verbinding met de open keuken, die in een rechte opstelling is geplaatst en is voorzien van een gaskookplaat, afzuigkap en spoelbak. Aan de achterzijde bevindt zich de aanbouw met bijkeuken, uitgerust met aansluitingen voor witgoed en het toilet. Vanuit de bijkeuken stap je zo de tuin in.
De tuin is diep en ruim, gelegen op het noorden. Hoewel de tuin om wat aandacht vraagt, biedt dit tegelijk een mooie kans om hem volledig naar eigen wens aan te leggen. Achterin de tuin staat de garage, die perfect is voor opslag, hobby of het stallen van fietsen en motor. Voor liefhebbers van buitenruimte en klussen is dit een absolute meerwaarde.
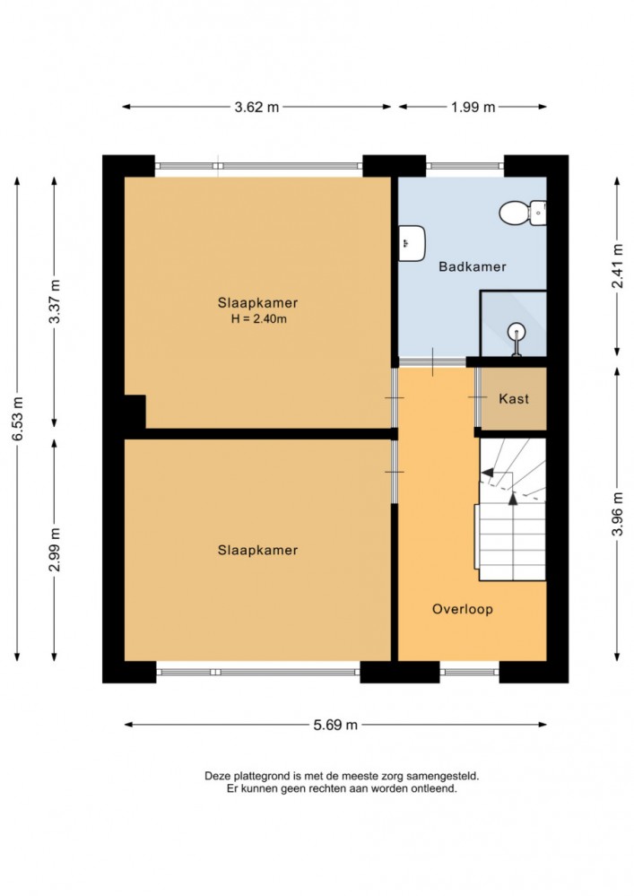
1e Verdieping:
Overloop met vaste trap naar de zolderverdieping, handige bergkast en toegang tot 2 ruime slaapkamers en de badkamer. De badkamer is ingericht met een douchecabine, wastafel en toilet.
Zolderverdieping:
Overloop met cv-opstelling en een ruime zolderkamer. Deze zolderkamer biedt meer dan genoeg mogelijkheden om een derde slaapkamer of werkruimte te creëren. Dankzij de ruimte voelt het als een volwaardige verdieping.
Bijzonderheden:
- Energielabel F
- Warm water en verwarming door middel van C.V.-combiketel uit 2021
- Rondom voorzien van harhouten kozijnen met dubbelglas en rolluiken
- Bij deze woning is een projectnotaris van toepassing, te weten Caminada Notarissen.
Zie jij jezelf hier al wonen? Deze woning staat klaar voor iemand die er met aandacht en plezier een prachtig thuis van wil maken. Grijp deze kans en tover het om tot jouw eigen droomwoning!
Kenmerken
- Adres
- Wilhelminastraat 7
- Postcode
- 4542 AR
- Type
- Hoekwoning
- Bouwjaar
- 1963
- Aantal kamers
- 3
- Aantal slaapkamers
- 2
- Perceel oppervlakte
- 205m²
- Oppervlakte woonruimte
- 81m²
- Inhoud
- 339m³
- Tuin
- Ja
- Garage aanwezig
- Ja
- Energielabel
- F
- Verwarming
- cv ketel
- Vraagprijs
- € 200.000,- k.k.


