Zomerstraat 15 in Hulst -
€150.000,- k.k.
Omschrijving
Tussenwoning met garage en patio in hartje Hulst – een woning met potentie!
Midden in het centrum van Hulst ligt deze karakteristieke tussenwoning met een woonoppervlak van 94 m², een kleine patiotuin en een eigen garage. De woning is gebouwd in 1936 en biedt volop mogelijkheden voor wie op zoek is naar een leuke kluswoning op een toplocatie. Energielabel D.
Indeling
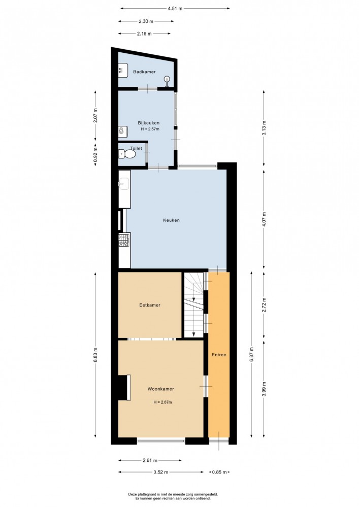
Via de hal kom je in de sfeervolle woonkamer ensuite met eetkamer. Aansluitend bevindt zich de ruime woonkeuken, voorzien van een eenvoudig keukenblok zonder inbouwapparatuur. Vanuit de bijkeuken is er toegang tot de patio, waar je ook de ingang van de garage vindt. Op de begane grond bevinden zich verder een toilet en een compacte badkamer met wastafel en douche. Ook is er nog een kelder die via de hal bereikbaar is!
Op de eerste verdieping is nu een grote open overloop met vaste kastruimte en een afgesloten slaapkamer. Met een kleine aanpassing kun je hier eenvoudig twee extra slaapkamers creëren.
Kenmerken:
- Grotendeels voorzien van dubbele beglazing (hardhouten en kunststof kozijnen)
- Energielabel D
- Vernieuwde groepenkast met 4 groepen en een aardlek
- Patio met toegang tot de garage (19 m2)
- Gelegen in het centrum van Hulst
Een woning met veel mogelijkheden voor de handige koper!
Kenmerken
- Adres
- Zomerstraat 15
- Postcode
- 4561 CE
- Type
- Tussenwoning
- Bouwjaar
- 1936
- Aantal kamers
- 5
- Aantal slaapkamers
- 3
- Perceel oppervlakte
- 99m²
- Oppervlakte woonruimte
- 94m²
- Inhoud
- 407m³
- Tuin
- Ja
- Garage aanwezig
- Ja
- Energielabel
- D
- Verwarming
- cv ketel
- Vraagprijs
- € 150.000,- k.k.


