Reham Makelaars en Taxateurs
Reham Makelaars en Taxateurs
Terug naar overzicht

Vrijedijk 11 in Ijzendijke
-
€435.000,- k.k.

Bekijk alle foto's

Omschrijving

Op een prachtige plek, direct aan de Belgische grens en midden in de uitgestrekte Zeeuws-Vlaamse polder, staat deze vrijstaande woning met een rijke historie. Het huis stamt oorspronkelijk uit 1700, maar is door de eeuwen heen meerdere keren gerenoveerd en aangepast aan de tijd, voor het laatst in 2015. Met een royaal woonoppervlak van circa 220 m², een perceel van 910 m² eigen grond en een ligging vlakbij het Belgische Watervliet en het Nederlandse Philippine, is dit een unieke kans voor wie ruim en landelijk wil wonen, maar toch voorzieningen dichtbij wil hebben.

De woning ademt karakter en biedt tegelijk modern comfort. Zo zijn er kunststof en hardhouten kozijnen met dubbel glas, elektrische rolluiken, vloer- en muurisolatie en een vernieuwde groepenkast met 8 groepen. De huidige cv-ketel (Nefit, 2016) zorgt voor verwarming, maar dankzij de aanwezigheid van maar liefst 24 zonnepanelen is de woning bij uitstek geschikt om over te stappen op een warmtepomp. Het energielabel is D.

Indeling begane grond
- Ruime entree met meterkast, trapopgang, toilet en toegang tot een berging en een eet-/voorkamer.
- Vanuit deze kamer bereik je de royale woonkamer met schouw en kachel, een sfeervolle plek met veel ruimte.
- Aansluitend ligt een gang met achterdeur en toegang tot een slaapkamer en de woonkeuken.
- De keuken (2015) is compleet uitgevoerd met inductiekookplaat, oven, afzuigkap en schuifpui naar de tuin.

Eerste verdieping
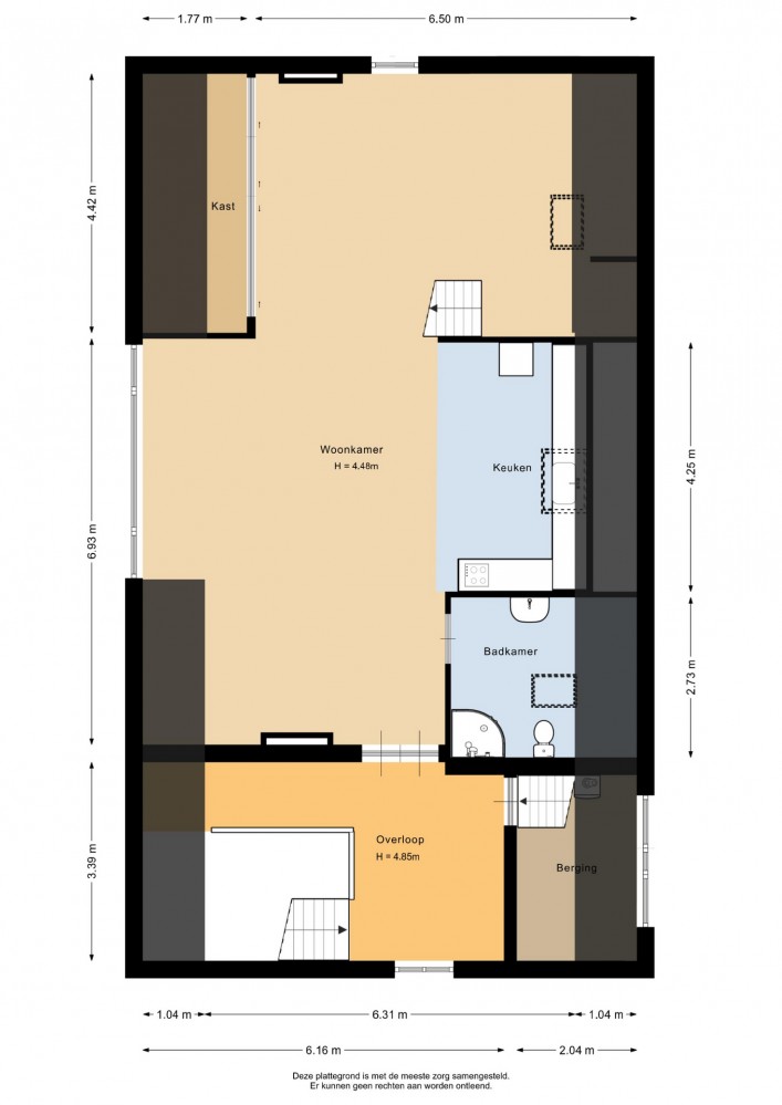
- Nu ingericht met een overloop, een grote woonkamer, een badkamer en een tweede open keuken.
- Deze etage biedt volop mogelijkheden om meerdere slaapkamers te realiseren.
- er is nog een trap naar een open \"slaapzolder\".

Buiten
De achtertuin is diep en altijd voorzien van een plek in de zon of schaduw. Noordelijk gelegen, maar dankzij de ruimte verrassend veelzijdig in gebruik. Er zijn twee houten bergingen en een houten overkapping aanwezig, ideaal voor opslag of hobby’s.

Kenmerken op een rij
- Vrijstaande woning met 220 m² woonoppervlak en perceel van 910 m²
- Oorspronkelijk bouwjaar 1700, laatste renovatie in 2015
- Dak vernieuwd in de jaren ’80
- Vloer- en muurisolatie, energielabel D
- Verwarming via Nefit cv-ketel (2016), 24 zonnepanelen aanwezig
- Kunststof en hardhouten kozijnen met dubbel glas, elektrische rolluiken
- Vernieuwde groepenkast met 8 groepen
- Keuken uit 2015 met schuifpui naar de tuin
- Grote achtertuin met bergingen en overkapping
- Unieke ligging in de polder, direct aan de Belgische grens

Vrijedijk 11 is een huis met mogelijkheden: veel ruimte en een buitenomgeving die rust en vrijheid uitstraalt. Dankzij de scherpe vraagprijs en de vele vierkante meters is dit een buitenkans voor wie zijn woonwensen zelf verder wil invullen.

+ Toon de volledige omschrijving

Kenmerken

  • Adres
  • Vrijedijk 11
  • Postcode
  • 4515 SM
  • Type
  • Vrijstaande woning
  • Bouwjaar
  • 1700
  • Aantal kamers
  • 4
  • Aantal slaapkamers
  • 3
  • Perceel oppervlakte
  • 910m²
  • Oppervlakte woonruimte
  • 220m²
  • Inhoud
  • 1063m³
  • Tuin
  • Ja
  • Garage aanwezig
  • Nee
  • Energielabel
  • D
  • Verwarming
  • cv ketel
  • Vraagprijs
  • € 435.000,- k.k.

Bezichtingsaanvraag voor Vrijedijk 11 in Ijzendijke

Vul onderstaande gegevens in en wij zullen zo spoedig mogelijk contact met u opnemen om een afspraak in te plannen voor de bezichtiging.

This site is protected by reCAPTCHA and the Google Privacy Policy and Terms of Service apply.