Cloosterstraat 35 in Kloosterzande -
€225.000,- k.k.
Omschrijving
Aan de Cloosterstraat 35 in Kloosterzande staat deze halfvrijstaande gezinswoning met aanbouw, diepe tuin en een ruime vrijstaande garage/berging met oprit achterin het perceel. De woning biedt verrassend veel ruimte – zowel binnen als buiten – en is gelegen op een perceel van maar liefst 270 m2 eigen grond.
Met een woonoppervlak van circa 126 m2 en een garage/berging van in totaal 30 m2 is dit een woning met potentie, ideaal voor wie op zoek is naar ruimte en de mogelijkheid om het geheel naar eigen wens te moderniseren. Dankzij de scherpe vraagprijs is dit een interessante kans voor starters of handige doeners die hun eigen woonideeën willen realiseren.
De woning wordt verwarmd door een Nefit HR-combiketel uit 2019 en beschikt over gedeeltelijk dubbel glas. Energielabel F.
Indeling
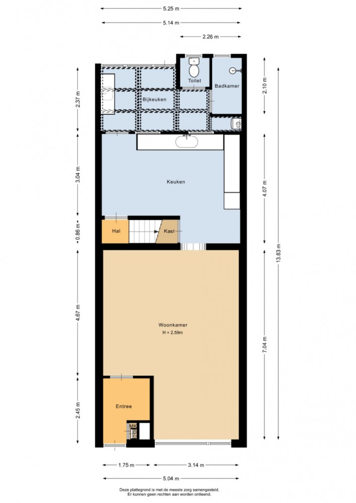
Begane grond: entree met meterkast en toegang tot de ruime L-vormige woonkamer. Achter de woonkamer ligt de woonkeuken met een eenvoudig keukenblok in hoekopstelling. Vanuit hier is er toegang tot een tussenhalletje met trap naar de verdieping en trapkast. Achter de keuken bevindt zich de bijkeuken met toilet en een douchehoek.
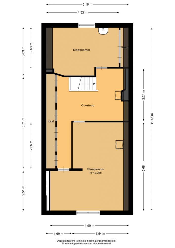
1e verdieping: ruime overloop met vaste kastenwand en toegang tot twee grote slaapkamers. Vanuit de overloop is er toegang tot een kleine bergzolder.
Buiten
De achtertuin is diep en biedt volop mogelijkheden. Achter op het perceel staat een vrijstaande garage/berging van circa 30 m2 met eigen oprit, bereikbaar via de achterzijde.
Een halfvrijstaande woning met veel binnenruimte, een royale tuin en een praktische garage – rustig gelegen in Kloosterzande en aantrekkelijk geprijsd voor wie zelf de handen uit de mouwen wil steken.
Ter inspiratie zijn er enkele 3D visuals tussen de foto\'s te vinden!
Bij deze woning is een projectnotaris van toepassing, te weten Notaris Unie.
Kenmerken
- Adres
- Cloosterstraat 35
- Postcode
- 4587 CA
- Type
- Halfvrijstaande woning
- Bouwjaar
- 1915
- Aantal kamers
- 3
- Aantal slaapkamers
- 2
- Perceel oppervlakte
- 270m²
- Oppervlakte woonruimte
- 126m²
- Inhoud
- 480m³
- Tuin
- Ja
- Garage aanwezig
- Ja
- Energielabel
- F
- Verwarming
- cv ketel
- Vraagprijs
- € 225.000,- k.k.


