Walstraat 2 in Oostburg -
€345.000,- k.k.
Bezichtig deze woning virtueel
Omschrijving
Modern wonen met comfort en ruimte, midden in het levendige centrum van Oostburg!
Deze instapklare, moderne hoekwoning is zo’n plek waar je direct het gevoel hebt dat alles klopt. De afwerking is fris en eigentijds, de ruimtes zijn verrassend royaal en met drie slaapkamers en twee badkamers is er meer dan genoeg plek voor een (jong) gezin. Extra pluspunt: de inpandige berging biedt mogelijkheden om een slaap- en badkamer op de begane grond te realiseren, waardoor de woning ook geschikt is voor gelijkvloers wonen, nu of in de toekomst.
Je woont hier midden in het gezellige centrum, met winkels, supermarkten en horeca letterlijk om de hoek. Even snel een boodschap doen, spontaan een terrasje pakken of lopend naar voorzieningen - het kan allemaal! Sportfaciliteiten liggen vlakbij en ook strand, zee en strandpaviljoens zijn snel te bereiken. Dankzij de goede uitvalswegen rijd je bovendien vlot richting Breskens en Terneuzen, maar ook steden als Brugge, Knokke-Heist en Antwerpen liggen binnen prettige afstand.
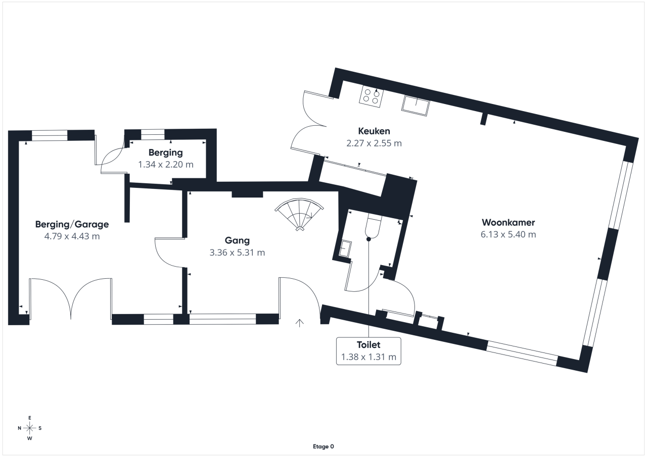
Indeling:
Je komt binnen in een opvallend ruime hal met trap naar boven, een toilet met fonteintje en directe doorgangen naar de berging en de woonkamer. De woonkamer is heerlijk licht en strak afgewerkt in een moderne, lichte kleurstelling met ingebouwde spots en een mooie doorlopende PVC-vloer die zorgt voor rust en eenheid. De open keuken sluit hier naadloos op aan en heeft een zwart-witte opstelling aan weerszijden, compleet met inbouwapparatuur. Het geheel voelt open en verbonden, met vanuit de keuken directe toegang tot de tuin.
De stadstuin is onderhoudsvriendelijk aangelegd, volledig betegeld en sfeervol ingericht. Een fijne plek om buiten te zitten zonder veel werk, perfect voor drukke agenda’s. Vanuit de tuin is er ook toegang naar de inpandige L-vormige berging met de witgoedaansluitingen. Deze ruimte biedt meerdere gebruiksmogelijkheden: zo kan deze worden omgebouwd tot slaapkamer met douche voor gelijkvloers gebruik. Ook is het mogelijk om, door het verlagen van de stoep, hier een garagefunctie van te maken. In deze ruimte bevindt zich tevens de cv-opstelling.
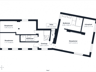
1e Verdieping:
Op de eerste verdieping is de indeling bijzonder praktisch en comfortabel. De overloop geeft toegang tot de royale master bedroom met inloopkast en een luik naar de bergzolder. De moderne badkamer is compleet uitgevoerd met een inloop regendouche, dubbele wastafel met meubel en designradiator. Daarnaast is er een apart toilet op de overloop. Verder vind je hier nog twee slaapkamers en een tweede badkamer met douche en wastafelmeubel — ideaal voor kinderen, logees of een thuiswerkplek. Via een vlizotrap is de zolderverdieping bereikbaar.
Zolder:
De tweede verdieping is een handige bergzolder. Perfect voor koffers, seizoensspullen en alles wat je netjes uit het zicht maar toch binnen handbereik wilt opbergen.
Bijzonderheden:
- Energielabel D (van voor renovatie)
- Voorzien van vloerisolatie
- Warm water en verwarming door middel van C.V.-combiketel uit 2019 (Nefit, eigendom)
- Begane grond voorzien van vloerverwarming
- Voorzien van kunststof kozijnen met HR++ glas (2022)
- Voorzien van airconditioning
Een moderne, verrassend ruime woning op een centrale plek, met flexibiliteit in indeling en comfort in gebruik. Een ideale thuisbasis voor wie vlot en zorgeloos wil wonen, met alle dagelijkse voorzieningen dichtbij.
Kenmerken
- Adres
- Walstraat 2
- Postcode
- 4501 JH
- Type
- Hoekwoning
- Bouwjaar
- 1956
- Aantal kamers
- 4
- Aantal slaapkamers
- 3
- Perceel oppervlakte
- 130m²
- Oppervlakte woonruimte
- 140m²
- Inhoud
- 660m³
- Tuin
- Ja
- Garage aanwezig
- Ja
- Energielabel
- D
- Verwarming
- cv ketel, vloerverwarming gedeeltelijk
- Vraagprijs
- € 345.000,- k.k.


