Churchilllaan 716 in Terneuzen -
€185.000,- k.k.
Bezichtig deze woning virtueel
Omschrijving
Uitzicht over de Westerschelde, wonen op hoogte in Terneuzen
Op de vierde verdieping van dit goed onderhouden complex wacht een comfortabel 2-kamerappartement met een panoramisch uitzicht over de Westerschelde. De woning biedt alles wat je zoekt in een praktisch en licht appartement, met een logische indeling en een heerlijk balkon waar je elke dag de voorbijvarende schepen ziet. Dankzij de ligging op hoogte geniet je van privacy, rust en een steeds wisselend uitzicht dat nooit verveelt.
Langs de Scheldedijk woon je hier op een plek waar water, stad en gemak samenkomen. Op loopafstand vind je winkelcentrum Serlippens, terwijl het bruisende centrum van Terneuzen met supermarkten, speciaalzaken en restaurants binnen een paar minuten bereikbaar is. Alles wat je nodig hebt ligt letterlijk om de hoek, terwijl de dijk en de wandelpaden langs het water uitnodigen tot ontspannen buiten zijn.
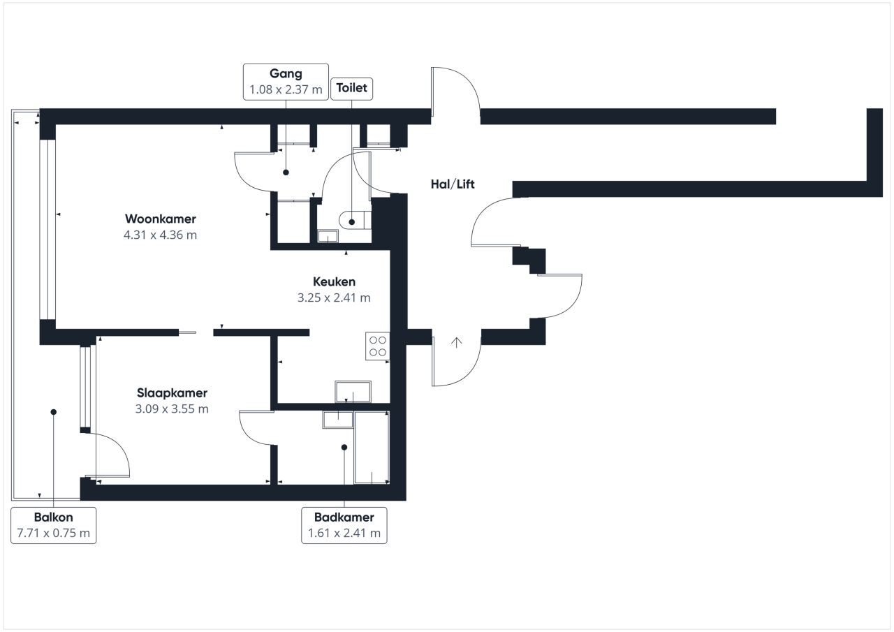
Indeling:
Begane grond:
Op de begane grond bevindt zich de gemeenschappelijke entree met brievenbussen en bellentableau. Hier vind je ook de berging die bij het appartement hoort, voorzien van elektra en ideaal voor het stallen van fietsen of het opbergen van extra spullen.
Verdieping:
Het appartement zelf ligt op de vierde verdieping en verwelkomt je in een hal met toegang tot het toilet, de meterkast en de ruimte met de elektrische boiler. De woonkamer is licht en ruim, met grote ramen die een prachtig uitzicht bieden op de Westerschelde. De halfopen keuken in hoekopstelling sluit hier naadloos op aan en is uitgerust met een elektrische kookplaat en afzuigkap. Via de woonkamer bereik je de slaapkamer, eveneens met zicht op het water en toegang tot het balkon waar het heerlijk genieten is van de frisse zeelucht. Achter de slaapkamer ligt de badkamer, voorzien van een ligbad met douche, een wastafelmeubel en de aansluiting voor de wasmachine.
Bijzonderheden:
- Energielabel E
- Warm water door middel van een elektrische boiler
- Verwarming door middel van elektrische verwarming
- Voorzien van hardhouten kozijnen met dubbelglas
- Maandelijkse VvE-bijdrage bedraagt € 159,29
Een fijne plek voor wie op zoek is naar comfort, uitzicht en een centrale ligging. Dit appartement combineert rust met het gemak van wonen nabij de stad – perfect voor een starter, alleenstaande of ieder die houdt van het leven aan de Westerschelde.
Kenmerken
- Adres
- Churchilllaan 716
- Postcode
- 4532 JB
- Type
- Appartement
- Bouwjaar
- 1971
- Aantal kamers
- 2
- Aantal slaapkamers
- 1
- Oppervlakte woonruimte
- 49m²
- Inhoud
- 149m³
- Tuin
- Nee
- Garage aanwezig
- Nee
- Energielabel
- E
- Verwarming
- elektrische verwarming
- Vraagprijs
- € 185.000,- k.k.


