Klaprooslaan 71 in Terneuzen -
€450.000,- k.k.
Bezichtig deze woning virtueel
Omschrijving
Ruimte, rust en groen – dat zijn de sleutelwoorden van deze verrassend royale 2/1 kapwoning in de gewilde wijk Oude Vaart. Met 5 slaapkamers, een uitgebouwde woonkamer, een ruime woonkeuken en een diepe, zonnige tuin op het zuidoosten biedt deze woning alle comfort die een gezin zich kan wensen. Dankzij de ligging aan een groenstrook geniet je bovendien van maximale privacy en een heerlijk vrij gevoel.
Pluspunten op een rij:
- Uitgebouwde woonkamer van ca. 40 m² met schuifpui naar de tuin
- Grote woonkeuken (ca. 15 m²) met moderne inbouwapparatuur
- In totaal 5 slaapkamers, ideaal voor een groot gezin of thuiswerkplekken
- Zonnige, groene achtertuin op het zuiden met veel privacy
- Brede oprit met ruimte voor 2 auto’s
Indeling
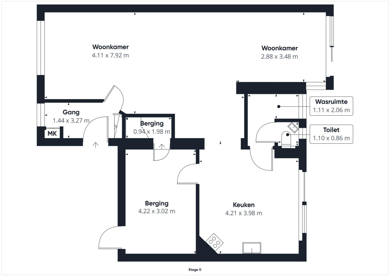
Entree met hal, meterkast en toiletruimte. De royale T-vormige woonkamer biedt volop ruimte voor een zit- en eetgedeelte en staat in directe verbinding met de tuin via een schuifpui. De voormalige keukenruimte is bij de woonkamer betrokken, waardoor een sfeervolle leefruimte van dik 11 meter diep is ontstaan.
De voormalige garage is omgebouwd tot een ruime woonkeuken met een complete L-opstelling, voorzien van o.a. inductiekookplaat, vaatwasser, combimagnetron, koelkast en vriezer. Hier is ook een tweede schuifpui aanwezig, waardoor binnen en buiten op zonnige dagen mooi in elkaar overlopen. Aangrenzend vind je een praktische bijkeuken met wasmachineaansluiting en vaste kast. De berging aan de voorzijde is ideaal voor fietsen, voorraad of gereedschap.
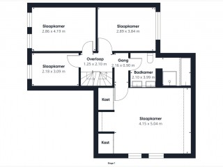
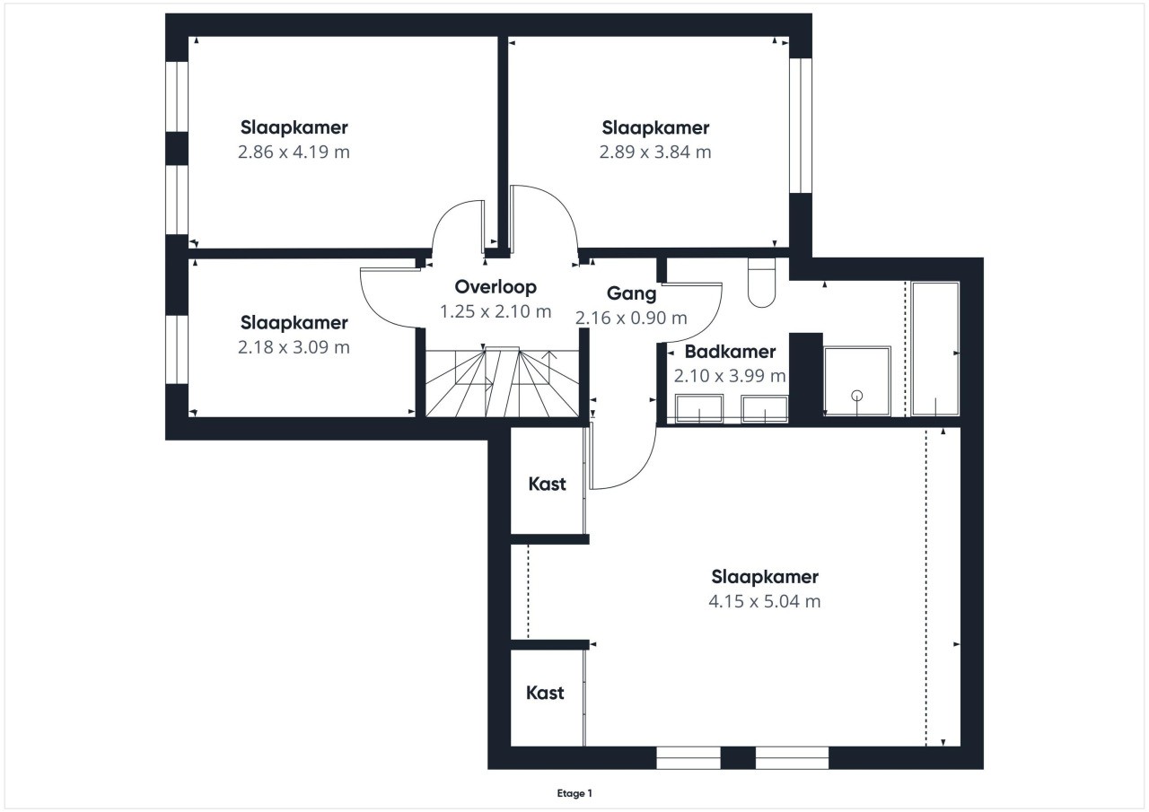
1e verdieping:
4 ruime slaapkamers, waarvan één boven de voormalige garage is gerealiseerd en dankzij extra dakramen en vaste kasten veel licht en bergruimte biedt. De badkamer is vergroot en uitgerust met ligbad, douche, dubbele wastafel en 2e toilet.
2e verdieping:
Via een vaste trap bereik je een grote 5e slaapkamer van ca. 25 m², perfect als tienerkamer, hobbyruimte of thuiswerkplek.
Buiten:
De diepe, leuk aangelegde achtertuin ligt op het zuidoosten en biedt volop zon, groen en privacy. Dankzij meerdere terrassen en volwassen beplanting is dit een heerlijke plek om te ontspannen. Aan de voorzijde beschikt de woning over een brede oprit met parkeerruimte voor twee auto’s.
Zoek je een ruime, goed onderhouden woning met veel leefruimte, volop slaapkamers en een heerlijke ligging in het groen? Dan is dit huis absoluut een bezoek waard.
Kenmerken
- Adres
- Klaprooslaan 71
- Postcode
- 4537 CX
- Type
- TWEE_ONDER_EEN_KAPWONING
- Bouwjaar
- 1986
- Aantal kamers
- 6
- Aantal slaapkamers
- 5
- Perceel oppervlakte
- 298m²
- Oppervlakte woonruimte
- 160m²
- Inhoud
- 550m³
- Tuin
- Ja
- Garage aanwezig
- Ja
- Energielabel
- C
- Verwarming
- cv ketel
- Vraagprijs
- € 450.000,- k.k.


