Olmenstraat 27 in Vogelwaarde -
€199.000,- k.k.
Bezichtig deze woning virtueel
Omschrijving
Leuke gezinswoning met serre, 3 slaapkamers en verzorgde tuin in het rustige Vogelwaarde!
Op zoek naar een fijne woning op een rustige woonlocatie? Deze tussenwoning met aangebouwde serre, 3 slaapkamers en een verzorgde achtertuin biedt alles wat je nodig hebt voor comfortabel wonen. De woning is goed onderhouden, voorzien van een nieuwe cv-ketel en heeft een energielabel B.
De woning ligt in het gemoedelijke dorp Vogelwaarde. Je vindt er alle dagelijkse voorzieningen binnen handbereik, zoals een supermarkt, basisschool, kinderopvang, sportverenigingen, een eetcafé en op korte afstand recreatiepark de Vogel. De centrale ligging zorgt bovendien voor een goede verbinding met nabijgelegen plaatsen als Hulst en Terneuzen, waardoor je profiteert van rust én bereikbaarheid.
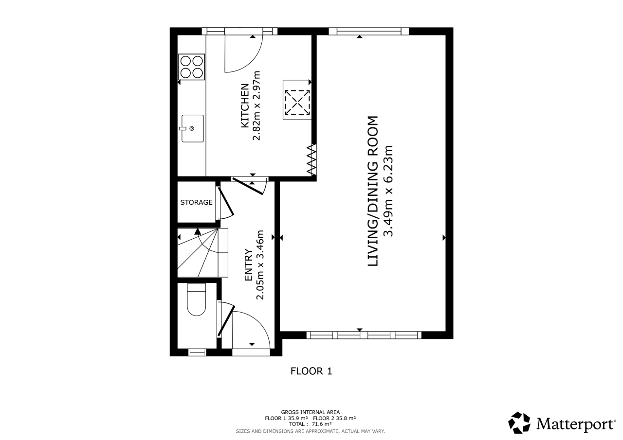
Indeling:
Bij binnenkomst kom je in de hal met toilet, trapopgang naar de eerste verdieping en een handige trapkast voor extra bergruimte. Vanuit de hal bereik je de dichte keuken, die is geplaatst in een dubbele rechte opstelling en is uitgerust met diverse inbouwapparatuur, zoals o.a. een inductiekookplaat, afzuigkap, combi-oven, vaatwasser, koelkast en spoelbak met Quooker. De nette keuken biedt toegang tot de lichte doorzonwoonkamer en de aangebouwde serre. De serre is een heerlijke plek om het hele jaar door van het buitenleven te kunnen genieten.
De achtertuin is verzorgd aangelegd. Dankzij de ligging op het noorden geniet je er van zowel zon als schaduw gedurende de dag. Achter in de tuin staat een ruime berging, perfect voor het opbergen van fietsen, tuingereedschap of andere spullen. Via de berging is er een doorgang naar de achterom.
1e Verdieping:
Op de eerste verdieping geeft de overloop toegang tot 3 slaapkamers, stuk voor stuk licht en praktisch ingedeeld. De badkamer is ingericht met een inloopdouche, wastafel en designradiator.
Zolder:
De zolder is een praktische bergzolder met de cv-opstelling en biedt extra opbergruimte.
Bijzonderheden:
- Energielabel B
- Voorzien van dak- en muurisolatie
- Warm water en verwarming door middel van C.V.-combiketel uit 2025
- Rondom voorzien van hardhouten kozijnen met dubbelglas en rolluiken
- Overname van complete inboedel behoort tot de mogelijkheden
Een woning met een prettige sfeer, een fijne ligging en alle ruimte die een gezin zich kan wensen. Hier woon je comfortabel, in een rustige omgeving met alle voorzieningen binnen handbereik - een plek waar je je al snel thuis zult voelen. Vooraf al een kijkje nemen? Bekijk dan de 3D tour op REHAM.NL
Kenmerken
- Adres
- Olmenstraat 27
- Postcode
- 4581 AT
- Type
- Tussenwoning
- Bouwjaar
- 1968
- Aantal kamers
- 4
- Aantal slaapkamers
- 3
- Perceel oppervlakte
- 259m²
- Oppervlakte woonruimte
- 77m²
- Inhoud
- 280m³
- Tuin
- Ja
- Garage aanwezig
- Nee
- Energielabel
- B
- Verwarming
- cv ketel
- Vraagprijs
- € 199.000,- k.k.


