Reham Makelaars en Taxateurs
Reham Makelaars en Taxateurs
Terug naar overzicht

Rozemarijnstraat 10 in Zaamslag
-
€1.050,- per maand

Nieuw
Bekijk alle foto's

Omschrijving

Op zoek naar een ruime en comfortabele woning in een rustige straat? Deze goed onderhouden tussenwoning in het gezellige dorp Zaamslag biedt alles wat je nodig hebt. De dagelijkse voorzieningen zoals, bakker, slager, modewinkels, café en sportaccommodaties liggen allemaal op loopafstand.

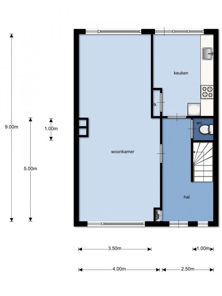
Begane grond
Via de hal met tegelvloer bereik je de kelderkast, meterkast, het toilet en de trap naar de verdieping. De ruime woonkamer (ca. 9,00 x 4,00 m) is voorzien van een tegelvloer, schouw met gasaansluiting en rolluiken.
De dichte keuken (ca. 6,90 x 2,50 m) beschikt over diverse inbouwapparatuur: koel-/vriescombinatie, oven, elektrische kookplaat, afzuigkap en close-in boiler.

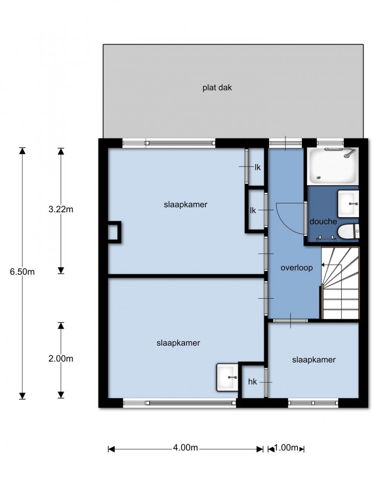
Eerste verdieping
Hier bevinden zich drie slaapkamers met houten vloeren, deels voorzien van kunststof kozijnen en rolluiken:

Slaapkamer 1: ca. 3,28 x 4,00 m
Slaapkamer 2: ca. 2,00 x 2,50 m
Slaapkamer 3: ca. 3,22 x 4,00 m met vaste kast
De badkamer (ca. 3,00 x 1,50 m) is uitgerust met een douchecabine, wastafelmeubel met spiegelkast en sanibroyeur.
Via de overloop heb je toegang tot het dakterras aan de achterzijde.

Zolder
Praktische bergzolder met combiketel (Intergas, 1995).

Buitenruimte
Een betonnen binnenplaats met stenen berging (ca. 2,50 x 3,00 m), voorzien van elektra, wasmachineaansluiting.

Algemeen:
Woning rondom voorzien van rolluiken (m.u.v. keuken), kunststof kozijnen (2011)

- Aanvaarding: per direct
- De minimale huurtermijn is 12 maanden
- Optie gemeubileerd ((Bovenop de vermelde huurprijs wordt een vast bedrag van € 100,- per maand in rekening gebracht voor gemeubileerd))
- De vermelde huurprijs is exclusief de kosten voor gas, water en elektra
- De vermelde huurprijs is exclusief de kosten voor internet en televisie
- Huisdieren zijn in overleg
- Roken is niet toegestaan
- Waarborgsom: 2 maanden huur

+ Toon de volledige omschrijving

Kenmerken

  • Adres
  • Rozemarijnstraat 10
  • Postcode
  • 4543 BV
  • Type
  • Tussenwoning
  • Bouwjaar
  • 1962
  • Aantal kamers
  • 4
  • Aantal slaapkamers
  • 3
  • Oppervlakte woonruimte
  • 102m²
  • Inhoud
  • 329m³
  • Tuin
  • Ja
  • Garage aanwezig
  • Nee
  • Energielabel
  • F
  • Verwarming
  • cv ketel
  • Vraagprijs
  • € 1.050,- per maand

Locatie

Bezichtingsaanvraag voor Rozemarijnstraat 10 in Zaamslag

Vul onderstaande gegevens in en wij zullen zo spoedig mogelijk contact met u opnemen om een afspraak in te plannen voor de bezichtiging.

This site is protected by reCAPTCHA and the Google Privacy Policy and Terms of Service apply.