Weststraat 39b in Philippine -
€649.000,- k.k.
Bezichtig deze woning virtueel
Omschrijving
Stijlvol en instapklaar wonen, mét zwembad, in Philippine!
Deze volledig gerenoveerde en 100% instapklare vrijstaande woning met aangebouwde garage, royale oprit en verwarmd zwembad is een waar woonparadijs! De woning is ideaal voor gezinnen die op zoek zijn naar ruimte, comfort en luxe. Met maar liefst 5 slaapkamers en 2 badkamers, waaronder een slaapkamer met badkamer en suite en een inloopkledingkast op de begane grond, biedt deze woning alles wat je nodig hebt voor zorgeloos en toekomstbestendig wonen!
De woning is gelegen aan aan de rand van het sfeervolle mosseldorp Philippine. Het is een rustige plek met alle dagelijkse voorzieningen, scholen en sportfaciliteiten binnen handbereik. De ligging maakt het ideaal voor gezinnen die houden van de gemoedelijkheid van een dorp, maar ook waarde hechten aan ruimte, rust en goede verbindingen naar omliggende steden.
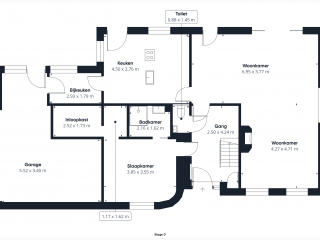
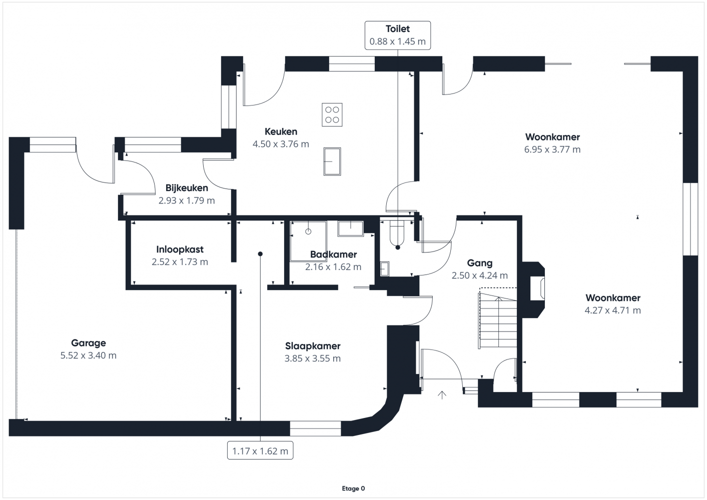
Indeling:
Je komt de woning binnen in de hal met meterkast. Op de begane grond vind je een ruime slaapkamer met een eigen badkamer en suite, compleet met inloopdouche, wastafelmeubel en een riante walk-in closet. Er is daarnaast een separaat toilet aanwezig. De sfeervolle L-vormige woonkamer is voorzien van een prachtige pvc-vloer en een sfeervolle gashaard. De dichte keuken, met een kook- en spoeleiland, is van alle gemakken voorzien en uitgerust met moderne inbouwapparatuur, waaronder twee combi-ovens, een inductiekookplaat, afzuigkap, koelkast en vaatwasser. In de achtergelegen bijkeuken zijn witgoedaansluitingen aanwezig.
De tuin is een oase van rust en ontspanning. Met meerdere terrassen, een verzorgd gazon, kleurrijke borders en een prachtig verwarmd zwembad is dit de ideale plek om te genieten van lange zomerdagen. Of je nu wilt barbecueën met vrienden, spelen met de kinderen of simpelweg ontspannen in de zon, hier kan het allemaal. De grote oprit en de praktische garage maken het geheel compleet. Vanuit de achtertuin geniet je bovendien van een prachtig weids, vrij uitzicht over de landerijen, waardoor je optimale rust en privacy ervaart.
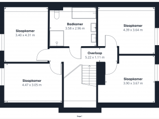
1e Verdieping:
Op de eerste verdieping tref je een ruime overloop met toegang tot maar liefst 4 royale slaapkamers. De luxe badkamer is een ware eyecatcher en voorzien van een ligbad, inloopdouche, toilet, dubbele wastafel met meubel en een designradiator. Deze verdieping biedt voldoende ruimte en comfort voor het hele gezin.
Zolder:
De bergzolder is bereikbaar via een vlizotrap op de overloop van de eerste verdieping. Hier is voldoende ruimte voor extra opslag.
Bijzonderheden:
- Energielabel A
- Volledig geïsoleerd
- Warm water en verwarming door middel van C.V.-combiketel uit 2018
- Rondom voorzien van hardhouten kozijnen met dubbelglas en rolluiken op de verdieping
- Zwembad (3 x 6 m - verwarmd middels warmtepomp)
- 14 Zonnepanelen (2020, eigendom)
- Laadpaal aanwezig voor elektrische auto
Een woning als deze kom je zelden tegen. Stijlvol, ruim, duurzaam en voorzien van alle luxe die je je kunt wensen. Maak vandaag nog een afspraak om deze prachtige woning te komen bezichtigen! Vooraf al een kijkje nemen? Bekijk dan de 3D tour op REHAM.NL
Kenmerken
- Adres
- Weststraat 39b
- Postcode
- 4553 AH
- Type
- Vrijstaande woning
- Bouwjaar
- 1990
- Aantal kamers
- 6
- Aantal slaapkamers
- 5
- Perceel oppervlakte
- 1110m²
- Oppervlakte woonruimte
- 192m²
- Inhoud
- 775m³
- Tuin
- Ja
- Garage aanwezig
- Ja
- Energielabel
- A
- Verwarming
- cv ketel
- Vraagprijs
- € 649.000,- k.k.


