Burgemeester Geillstraat 18 in Terneuzen -
€175.000,- k.k.
Omschrijving
Wonen in het bruisende hart van Terneuzen, omringd door de levendigheid van de stad en tegelijkertijd genieten van je eigen moderne en sfeervolle woonruimte!
Dit karakteristieke pand uit 1926 werd oorspronkelijk gebouwd als kantoor voor Rederij Nolson en heeft door de jaren heen verschillende functies gehad, waaronder als accijnskantoor en politiebureau. Tegenwoordig is dit gemeentelijke monument een unieke woonlocatie met een rijke geschiedenis. Het kleinschalige complex biedt stijlvolle, moderne appartementen en diverse extra’s, zoals een gezamenlijke binnenplaats, een praktische fietsenstalling en een dakterras waar bewoners heerlijk kunnen ontspannen in de buitenlucht.
In dit voormalige politiebureau, dat in 2023 volledig is gerenoveerd, bevindt zich dit charmante benedenappartement. Gelegen in het historische stadscentrum woon je hier op loopafstand van gezellige winkelstraten en diverse horecagelegenheden. Ook het Scheldetheater en de bioscoop liggen vlakbij, ideaal voor een avondje uit. Toe aan een moment van rust? Maak een ontspannen wandeling langs de Scheldeboulevard en geniet van het prachtige uitzicht over het water.
Indeling:
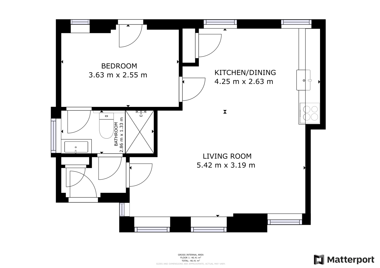
Bij binnenkomst tref je een fris en eigentijds interieur, helemaal klaar voor een nieuwe bewoner. Vanuit de hal heb je toegang tot de badkamer en de lichte woonkamer met open keuken. De keuken is voorzien van moderne inbouwapparatuur en heeft tevens extra, ingebouwde, bergruimte. Vanuit de woonkamer is ook de slaapkamer bereikbaar welke toegang geeft tot de binnenplaats. De badkamer is eveneens stijlvol vernieuwd en beschikt over een douche, toilet en een wastafel.
Dankzij de recente renovatie straalt het hele appartement moderniteit en comfort uit, terwijl het tegelijkertijd warmte en karakter behoudt.
Bijzonderheden:
- Energielabel B
- Voorzien van dak-, muur- en vloerisolatie
- Warm water en verwarming door middel van C.V.-combiketel uit 2023
- Rondom voorzien van kunststof kozijnen met HR+++ glas
- Maandelijkse VvE-bijdrage € 125,-
Op zoek naar een woning met charme én hedendaags wooncomfort? Dit is je kans! Plan een bezichtiging en ervaar zelf hoe prettig het hier wonen is.
Kenmerken
- Adres
- Burgemeester Geillstraat 18
- Postcode
- 4531 EB
- Type
- Appartement
- Bouwjaar
- 1927
- Aantal kamers
- 2
- Aantal slaapkamers
- 1
- Oppervlakte woonruimte
- 48m²
- Inhoud
- 170m³
- Tuin
- Nee
- Garage aanwezig
- Nee
- Energielabel
- B
- Verwarming
- cv ketel
- Vraagprijs
- € 175.000,- k.k.


