Veerstraat 5 in Zaamslag -
€250.000,- k.k.
Bezichtig deze woning virtueel
Omschrijving
Karaktervolle woning met winkel en verrassend veel ruimte
Deze halfvrijstaande woning biedt niet alleen een fijne woonplek, maar ook de mogelijkheid om wonen en werken te combineren. Op de begane grond bevindt zich nu nog de winkelruimte, maar welke tal van gebruiksmogelijkheden biedt, terwijl de verdiepingen comfortabel zijn ingericht als woonhuis. Een verrassend royaal pand, met authentieke elementen en een praktische indeling.
De ligging is ideaal: midden in de dorpskern van Zaamslag, met werkelijk alle voorzieningen binnen handbereik. Op loopafstand vind je onder andere een bakker, slager, winkels en sportfaciliteiten. Ook scholen liggen dichtbij, waardoor dit een aantrekkelijke plek is voor zowel gezinnen als ondernemers die graag centraal willen wonen en werken.
Indeling:
Begane grond:
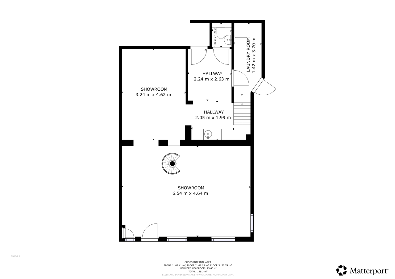
Bij binnenkomst kom je in een ruime kamer welke op dit moment nog dienst doet als winkel, maar die zich tevens uitstekend leent voor een nieuwe invulling, bijvoorbeeld als royale woonkamer of praktijkruimte. Achter deze ruimte ligt nog een extra kamer, die voorheen als opslag werd gebruikt en ook goed inzetbaar is als hobbykamer of werkkamer. Vanuit hier bereik je de hal met een kitchenette, twee vaste diepe kasten, de trapopgang naar de keuken op de eerste verdieping en toegang tot het toilet met fonteintje. Vanuit de hal is er tevens een uitgang naar de zijkant van de woning.
Eerste verdieping:
De eerste verdieping start met een hal en de trapopgang naar de tweede verdieping. Aan de voorzijde ligt de eetkamer, terwijl de woonkamer aan de achterzijde is gesitueerd. Deze is voorzien van een sfeervolle schouw en een schuifpui naar het dakterras, waar je heerlijk buiten kunt zitten. De keuken is bereikbaar vanuit de woonkamer en uitgerust met inbouwapparatuur. Tussen de keuken en woonkamer zijn de authentieke dubbele deuren nog aanwezig, die nu buiten werking zijn maar karakter toevoegen aan het geheel.
Het dakterras is compact, maar verrassend gezellig. Vanaf het dakterras heb je zicht op een prachtige notenboom die een groene en sfeervolle omlijsting biedt. Het is een plek waar je volop privacy ervaart en toch midden in het centrum woont.
Tweede verdieping:
Op de tweede verdieping bevindt zich de overloop met de cv-installatie en toegang tot een handige inloopkast. Daarnaast is hier de slaapkamer gesitueerd, met een eigen badkamer voorzien van douche, toilet en wastafel met meubel. Een fijne, private verdieping waar rust en comfort samenkomen.
Bijzonderheden:
- Energielabel A+ (winkel) en B (woning)
- Voorzien van dak-, muur- en vloerisolatie
- Voorzien van zonnepanelen uit 2023
- Warm water en verwarming via C.V.-combiketel uit 2005
- Voorzien van kunststof en hardhouten kozijnen met dubbelglas
Verkoper aan het woord:
\"Ik heb met veel plezier in dit pand, mijn winkel en woonhuis, gewerkt en gewoond. Het is in de loop van de jaren meerdere malen verbouwd en in 2005 is het pand vanaf de fundering geheel weer opgebouwd, alleen het voorste winkelgedeelte beneden is nog van het oude pandje. In dit pand heb ik echt (mijn eigen) smaak en gezelligheid aangebracht, oude glas-in-lood-elementen etc. Het heeft een leuk dakterras waar je heerlijk kunt genieten van onder andere een prachtige notenboom achter de woning. Is het niet uw stijl, dan kunt u dit op een makkelijke manier geheel naar uw eigen smaak veranderen. De makelaar was verbaasd over de grootte van het pand toen hij kwam. Ik hoop dat u door dit stukje een beetje nieuwsgierig bent geworden naar dit superleuke pand!\"
Of je nu op zoek bent naar een royale woning in het centrum, een combinatie van wonen en werken, of simpelweg een bijzonder pand met mogelijkheden: dit huis in Zaamslag biedt het allemaal. Maak snel een afspraak voor een bezichtiging en ervaar zelf de ruimte, de sfeer en de veelzijdigheid die dit unieke pand te bieden heeft.
Kenmerken
- Adres
- Veerstraat 5
- Postcode
- 4543 BG
- Type
- Halfvrijstaande woning
- Bouwjaar
- 1920
- Aantal kamers
- 4
- Aantal slaapkamers
- 1
- Perceel oppervlakte
- 91m²
- Oppervlakte woonruimte
- 159m²
- Inhoud
- 382m³
- Tuin
- Ja
- Garage aanwezig
- Nee
- Energielabel
- B
- Verwarming
- cv ketel
- Vraagprijs
- € 250.000,- k.k.


