Hoogaarswerf 1 in Terneuzen -
€485.000,- k.k.
Bezichtig deze woning virtueel
Omschrijving
Moderne, goed onderhouden woning met inpandige garage en zonnige tuin!
In de jonge en waterrijke wijk Othene Zuid staat deze fraaie geschakelde halfvrijstaande woning met witte gevels, donkere kozijnen en een verzorgde uitstraling. De woning biedt verrassend veel ruimte, is energiezuinig en biedt de mogelijkheid tot gelijkvloers wonen dankzij de slaapkamer en badkamer op de begane grond.
De woning is gebouwd in 2019 op een perceel van 235 m² en heeft een woonoppervlak van ruim 140 m². De tuin ligt op het westen en beschikt over een achterom naar een rustig pleintje. Verder is er een inpandige, geïsoleerde garage van 21 m² met elektrische garagedeur en handige loopdeur naar de oprit. De woning is uitstekend geïsoleerd, voorzien van kunststof kozijnen, rolluiken op veel ramen, 10 zonnepanelen en heeft energielabel A.
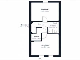
Indeling
Begane grond: entree met meterkast, toilet en toegang tot de woonkamer. Vanuit de hal kom je eerst in de open keuken aan de voorzijde, voorzien van een moderne witte inbouwkeuken met Bosch apparatuur: een 5-pits inductiekookplaat, afzuigkap, vaatwasser, koelkast en combi-stoomoven. De Quooker-kraan is in 2024 vernieuwd. De keuken loopt door in de lichte woonkamer met brede pui en tuindeuren naar de achtertuin. Hier vind je ook de trapopgang, een trapkast en toegang tot de bijkeuken met witgoedaansluitingen.
Vanuit de bijkeuken is er doorgang naar de ruime, geïsoleerde garage (5,98 x 3,44 m). De deur vanuit de hal naar de garage is aan de garagezijde momenteel dichtgezet, maar eenvoudig weer te openen. Aan de andere zijde van de bijkeuken ligt de slaapkamer op de begane grond, met aansluitend een moderne badkamer voorzien van inloopdouche, wastafelmeubel en toilet.
1e verdieping: overloop met toegang tot de stookruimte/berging, twee ruime slaapkamers die open zijn tot in de nok en veel lichtinval hebben door zijramen en dakramen. Op deze verdieping bevindt zich ook een tweede badkamer met wastafel, douche en toilet.
Tuin
De achtertuin is keurig onderhouden en sfeervol aangelegd. De tuin is voorzien van een elektrisch zonnescherm met Somfy motor en elektra- en watervoorzieningen zijn aanwezig. De ligging op het westen zorgt voor veel zon, en via de poort is er toegang tot een pleintje achter de woning.
Een moderne, energiezuinige woning met uitstekende voorzieningen en de mogelijkheid om volledig gelijkvloers te wonen – rustig gelegen in de populaire wijk Othene Zuid, op korte afstand van winkels, scholen en het buitengebied.
Ook deze woning is volledig virtueel in 3D te bezichtigen via Reham.nl
Kenmerken
- Adres
- Hoogaarswerf 1
- Postcode
- 4533 JG
- Type
- Geschakelde woning
- Bouwjaar
- 2019
- Aantal kamers
- 4
- Aantal slaapkamers
- 3
- Perceel oppervlakte
- 235m²
- Oppervlakte woonruimte
- 141m²
- Inhoud
- 550m³
- Tuin
- Ja
- Garage aanwezig
- Ja
- Energielabel
- A
- Verwarming
- cv ketel
- Vraagprijs
- € 485.000,- k.k.


