Bosjesweg 63 in Sluiskil -
€175.000,- k.k.
Bezichtig deze woning virtueel
Omschrijving
Leuke tussenwoning met aanbouw, garage en volop potentie op een rustige locatie in Sluiskil!
Deze aantrekkelijke tussenwoning is een fijne basis voor wie op zoek is naar een betaalbaar huis met mogelijkheden. Met een aanbouw, drie slaapkamers en een eigen garage is dit een ideale woning voor starters of jonge gezinnen. De woning is redelijk onderhouden, maar biedt ook ruimte om met wat liefde en aandacht helemaal naar eigen smaak te worden gemaakt. Hier leg je de basis voor jouw eigen droomwoning.
De woning ligt op een mooie en rustige plek in Sluiskil, recht tegenover openbaar groen. Een fijne, vrije ligging waar je dagelijks geniet van rust en ruimte. Tegelijkertijd zijn alle belangrijke voorzieningen dichtbij: supermarkt, bakker, school en kinderopvang bevinden zich op korte afstand, waardoor het een praktische en prettige woonomgeving is voor het hele gezin.
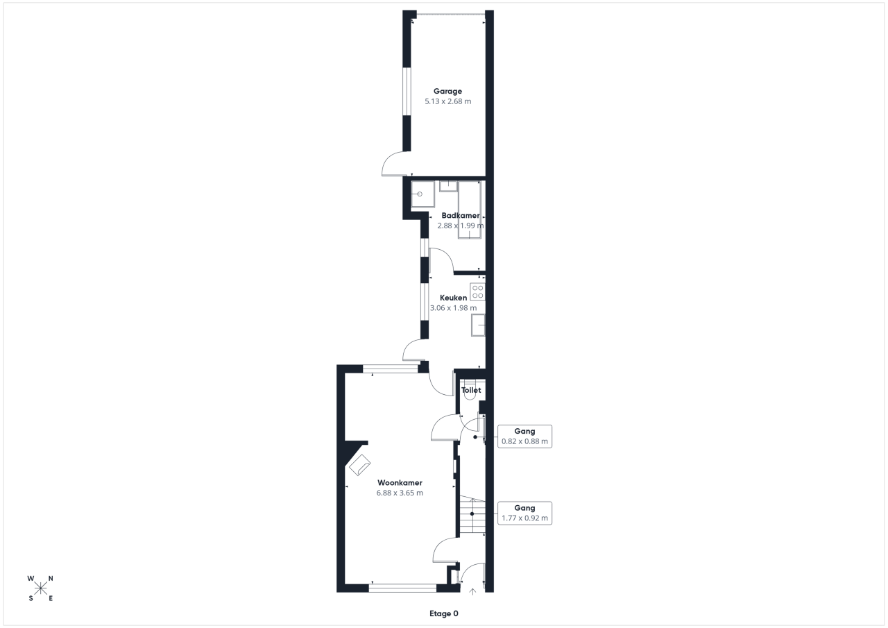
Indeling:
Je komt de woning binnen in de hal met meterkast en de trapopgang naar de eerste verdieping. Vanuit hier stap je de lichte doorzonwoonkamer binnen, waar de houtkachel zorgt voor extra sfeer en warmte. Aansluitend bevindt zich een portaal met toegang tot de praktische trapkast en het toilet. De dichte keuken is geplaatst in een rechte opstelling en voorzien van een gaskookplaat, afzuigkap en oven. Vanuit de keuken is er toegang tot de badkamer, ingericht met een douche, ligbad, wastafel en aansluitingen voor witgoedapparatuur.
De achtertuin is grotendeels aangelegd met een terras en ligt op het noordwesten, waardoor je hier in de middag en avond heerlijk van de zon kunt genieten. De tuin beschikt over een eigen achterom en biedt voldoende ruimte om een fijne buitenplek te creëren. De garage zorgt daarnaast voor extra bergruimte of een plek voor de auto of fietsen.
1e Verdieping:
Overloop met toegang tot drie comfortabele slaapkamers. De kamers zijn praktisch ingedeeld en geschikt als slaap-, werk- of kinderkamer.
Zolder:
Vanaf de overloop op de eerste verdieping heb je toegang tot de bergzolder, ideaal voor het opbergen van seizoensspullen en andere zaken die je niet dagelijks nodig hebt. Een praktische aanvulling die bijdraagt aan het comfort en de functionaliteit van de woning.
Bijzonderheden:
- Energielabel C
- Warm water en verwarming door middel van C.V.-combiketel uit 2024 (Remeha, eigendom)
- Rondom voorzien van (hard)houten kozijnen met deels dubbele beglazing
Ben je op zoek naar een betaalbare woning op een rustige locatie, met ruimte, een garage en volop mogelijkheden om er iets eigens van te maken? Dan is deze tussenwoning in Sluiskil absoluut een bezichtiging waard. Laat je verrassen door de ligging, de indeling en het potentieel dat deze woning te bieden heeft. Vooraf al een kijkje nemen? Bekijk dan de 3D tour op REHAM.NL
Kenmerken
- Adres
- Bosjesweg 63
- Postcode
- 4541 AN
- Type
- Tussenwoning
- Bouwjaar
- 1954
- Aantal kamers
- 4
- Aantal slaapkamers
- 3
- Perceel oppervlakte
- 122m²
- Oppervlakte woonruimte
- 77m²
- Inhoud
- 320m³
- Tuin
- Ja
- Garage aanwezig
- Ja
- Energielabel
- C
- Verwarming
- cv ketel
- Vraagprijs
- € 175.000,- k.k.


